RENOVMAGIC, rénovation intérieure à Saint-Maur-des-Fossés

Conception et installation de votre cuisine à Saint-Maur-des-Fossés (94100)

Conception et installation de cuisine

Créez la cuisine qui vous ressemble à Saint-Maur-des-Fossés

Vous rêvez d’une cuisine sur mesure à Saint-Maur-des-Fossés qui allie esthétique,
fonctionnalité et qualité française ?
Nous vous accompagnons à chaque étape, de la conception à la pose, pour un résultat unique
et personnalisé.

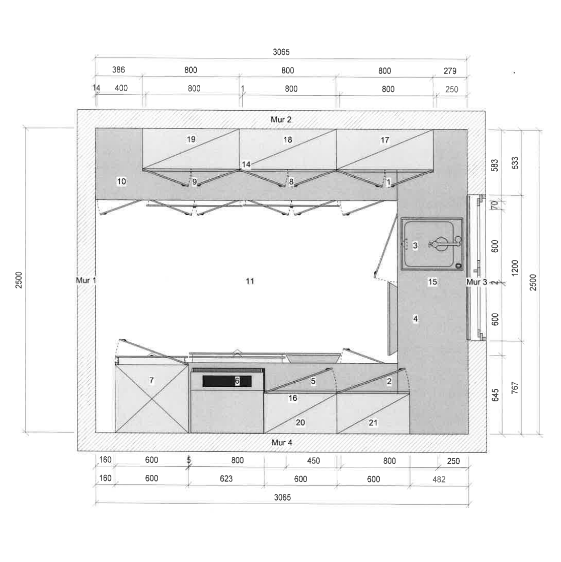
Exemple de réalisation d'une cuisine sur-mesure (plan)

Notre intervention inclue

Transformez votre projet en réalité.

Contactez-nous pour discuter de votre future cuisine à
Saint-Maur-des-Fossés et imaginons ensemble les premières esquisses.

Prise de mesures précises directement chez vous

Fabrication 100% française avec des matériaux de qualité

Création de plans personnalisés selon vos envies et contraintes

Imaginez et concevez votre cuisine sur mesure à Saint-Maur-des-Fossés avec notre équipe

aménagement cuisine

Notre équipe de cuisinistes se déplacent directement chez vous à Saint-Maur-des-Fossés et dans les villes voisines pour effectuer un relevé de mesures détaillé.

Cette étape est essentielle pour garantir une implantation parfaite de votre future cuisine et pour optimiser chaque centimètre de votre espace.

Faites confiance à votre expert en rénovation à Saint-Maur-des-Fossés

Nous réalisons notamment

Sélection et validation des matériaux

Vous touchez les échantillons de façades, comparez les finitions, choisissez vos poignées et le plan de travail qui reflète votre style.

Réalisation des relevés techniques

Nous vérifions les arrivées d'eau, contrôlons les prises électriques et identifions les contraintes structurelles comme les murs porteurs et les angles irréguliers.

Création des plans d'implantation détaillés

Nous dessinons un plan précis montrant l'agencement des meubles, l'implantation de l'évier, de la plaque de cuisson et de l'espace de préparation. Vous visualisez votre cuisine avant fabrication.

Ces actions concrètes garantissent que chaque détail correspond à vos attentes et à ce que vous souhaitez pour votre cuisine.

Fabrication et pose des meubles par notre équipe

Nous confions la fabrication de votre cuisine à des ateliers 100 % français reconnus pour leur savoir-faire artisanal. Chaque élément est conçu avec le plus grand soin.

Notre équipe assure :

  • La réception et le contrôle qualité des meubles, avec vérification minutieuse des dimensions et des finitions.
  • La livraison et la pose dans le respect des délais, en coordination avec vos disponibilités et la préparation de votre pièce.
  • Les réglages finaux et la mise en service des équipements, accompagnés de conseils d'utilisation.

Vous profitez ainsi d’une cuisine clés en main, prête à être utilisée en toute sérénité.

Travaux d'installation et de raccordement de votre cuisine

 

Nous réalisons tous les travaux techniques et d'installation nécessaires pour que votre cuisine soit parfaitement opérationnelle et sécurisée :

Réalisation de vos travaux de plomberie

Nous assurons la dépose éventuelle de l'ancienne installation, la mise en place des arrivées et évacuations d'eau, ainsi que le raccordement de l'évier, du lave-vaisselle et des autres équipements.

Travaux sur les installations électriques

Nos plombiers réalisent la mise aux normes électriques, l'installation des prises, des points lumineux et le branchement des appareils électroménagers.

Pose des meubles et accessoires

Nous installons les meubles bas et hauts, fixons les plans de travail, montons les accessoires et effectuons tous les réglages nécessaires pour un rendu parfait.

Ces interventions vous garantissent une cuisine totalement opérationnelle et prête à l’emploi.

Nous veillons à la sécurité et au bon fonctionnement de chaque élément, pour que vous puissiez pleinement profiter de votre nouvel espace sans contrainte.

Tout savoir sur notre conception et installation de cuisine à Saint-Maur-des-Fossés

Combien de temps dure la fabrication d'une cuisine ?

Nos délais varient de 3 à 6 semaines après validation des plans et du devis. Nous vous informons à chaque étape pour que vous puissiez anticiper l'installation.

Est-il possible de modifier le plan initial ?

Oui, vous pouvez demander des modifications tant que les travaux n’ont pas été lancés. Nous vous accompagnons dans ces ajustements et vous montrons les nouvelles versions avant validation. Nous retravaillons le plan jusqu’à ce qu’il corresponde parfaitement à vos attentes.

Intervenez-vous en dehors de Saint-Maur-des-Fossés ?

Nous nous déplaçons également à Créteil, Champigny-sur-Marne, Maisons-Alfort et dans les communes voisines.

Nous nous occupons également de l'aménagement de votre dressing.

installation de cuisine

Création et référencement du site par Simplébo Simplébo

Connexion